Obras
Proyectos
El Estudio
Contacto
Pico estrada . Martorell arquitectos
Obras
Proyectos
El Estudio
Contacto
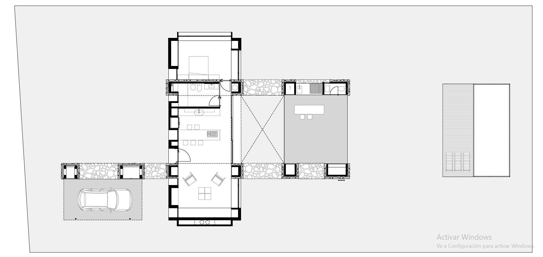
VERTIENTES - CAFAYATE
↑
Back to Top